общая площадь 97,8 м2
План 1-го этажа.
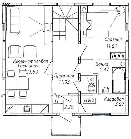
План 2-го этажа.
Просмотреть фильм, показывающий этапы постройки канадского дома из сэндвич-панелей.
Строительство мансардного дома по канадской технологии в Мышкине - фоторепортаж.